镜面魔方  |  MS·CHIC 美发沙龙旗舰店

杭州, 中国
零售空间
2020年11月
380m²


国民消费升级驱动商业场景迭代,擅长以平衡手法重构空间的 Atelier Right Hub 是合设计工作室,为城市中心地段新添了一处兼具工业氛围与当代元素的跨时空体验的美发沙龙。

在2020年夏天,业主委托建筑师将位于杭州钱塘江畔城市中心的一座商业大厦的7楼空间改造成美发沙龙。设计要在完全满足业主所要求的功能前提下为使用者提供与一般理发店截然不同的体验。

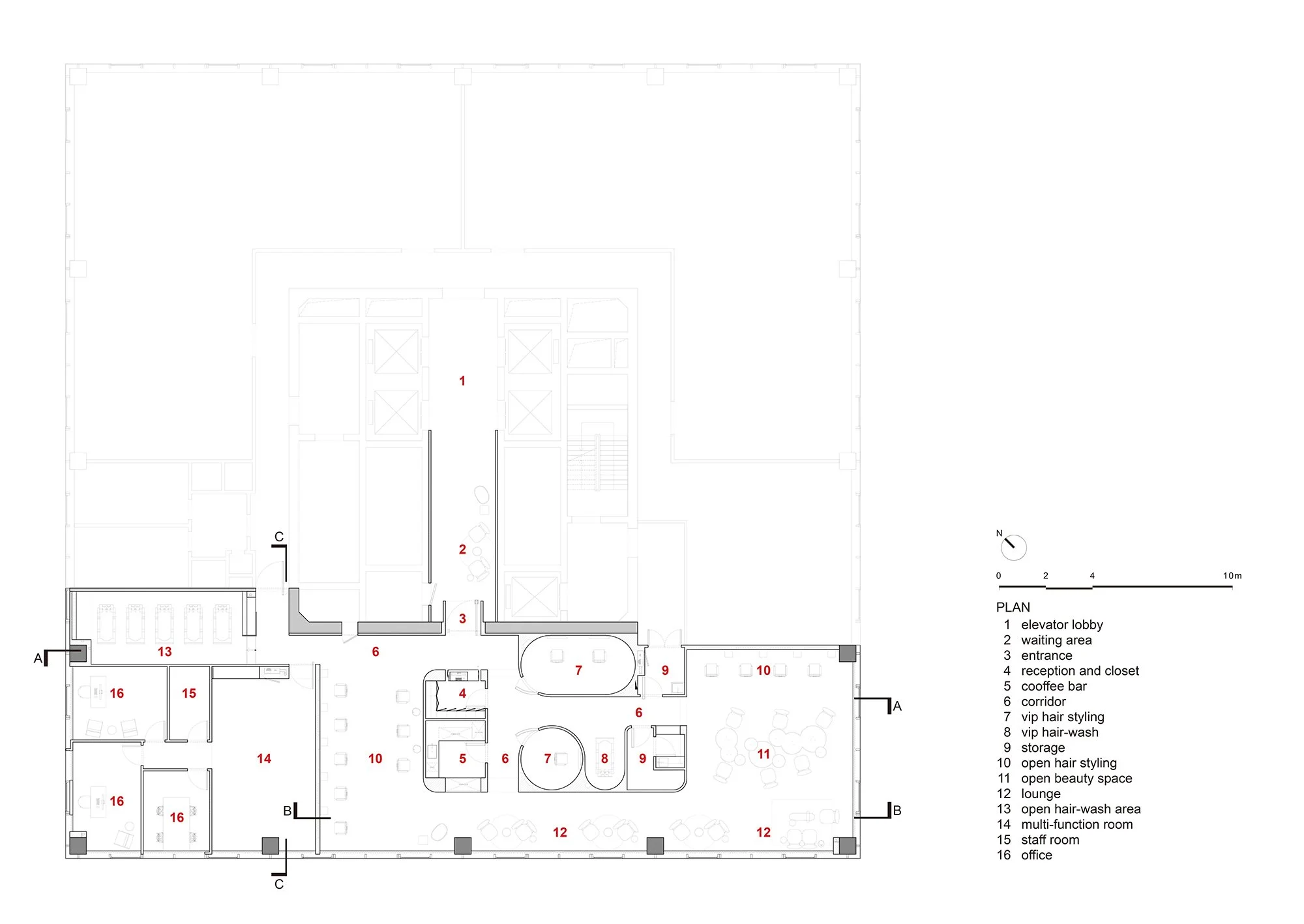
建筑师在美发区的中心设置了一个“镜面魔方”,连续的镜面部分弯曲、部分平整,当客人站在不同的位置时,镜面会映射出不同的人像和环境,带来千差万别的感受。美发沙龙的主要视觉点缀之一位于接待区,客人在入口前的弧形镜面上看到被扭曲和放大的景象,可让进店的顾客瞬间感到惊艳。接待台由现浇混凝土制成,在视觉上类似于石块,与镜面墙体形成强烈反差。然而,接待台单一的外观并不会妨碍其丰富的功能性:它具有桌面和插入式连接点,以确保完整的工作空间。

工程最主要的工作是建造空间中部的“镜面魔方”,外侧是镜面内侧采用黑色木饰面。魔方集合了丰富的功能空间,包含接待台和储物柜、咖啡吧、VIP美发室、VIP洗发室、储藏室。这片巨大的镜面打破了空间的界限,为人们带来了丰富的感知,其本身敦实的体量感和不锈钢镜面肌理之间形成了奇妙的矛盾性和超现实感。

空间采用高大的落地窗,贯穿地面和天花,让城市中心和钱塘江的风光一览无余。阳光透过落地窗洒入室内,整个空间干净而明亮。白色成为了空间的装饰背景,大面积的留白,恰到好处地突出了“镜面魔方”的造型和质感。卷帘同样采用白色,与背景融合在一起,减少对视觉的干扰,同时与墙面坚硬的质地形成对比,让空间更轻盈。

在改造项目中,空间被叠加了时间这个维度,使得过去与现在的冲突、场地与功能的冲突更加凸显。空间改造中的这些矛盾与冲突,可以顺势让其表现、彰显冲突,也可以借力消减,使其和谐,或者就将不同的元素拼贴,简单坦诚的展示。

建筑师暴露混凝土立柱、钢梁和空调管线并将其整体涂成白色的设计策略参考了粗野主义的建筑风格,保留原始结构的同时又用镜面不锈钢材质给空间注入新的能量,拼贴出新与旧的结合,重现空间的艺术本色。

photo credit © Studio RH